ClickCase.it

Appartamento in vendita Viale Diaz n.29

Ufficio in Vendita da Privato - Viale Armando Diaz 29, Cagliari

144 m² | più di 5 locali | € 500.000 | Segnala abuso

Descrizione

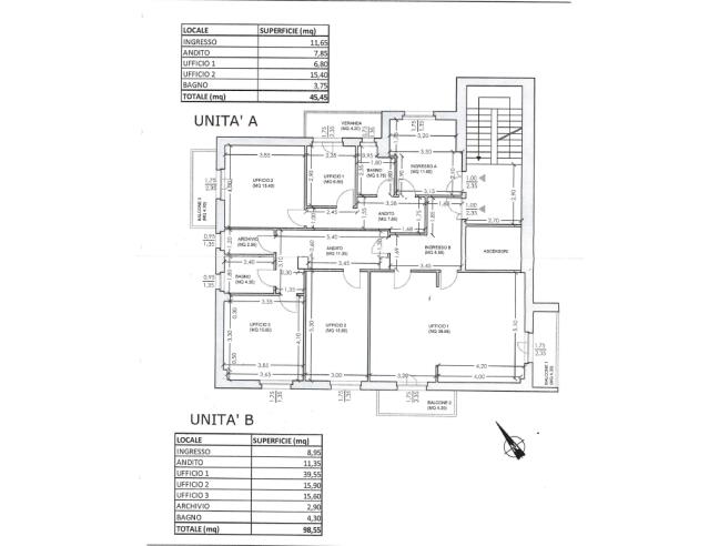
Privato vende. Scopri questo elegante ufficio di 149 mq situato al settimo piano di un palazzo del 1963, completamente ristrutturato nel 2010. Con i suoi 12 locali e un'altezza dei soffitti di 2,9 metri, questo spazio rappresenta la soluzione ideale per attività professionali che necessitano di ampi spazi e funzionalità.

Caratteristiche principali:

Superficie totale: 149 mq di spazio utilizzabile

12 locali versatili e ben distribuiti.

Ascensore per un comodo accesso al settimo piano

Posto auto incluso nella proprietà

Ristrutturazione recente (2010) che garantisce comfort e modernità

Posizione strategica: L'ufficio si trova in Viale Armando Diaz, una delle arterie principali di Cagliari, con eccellenti collegamenti e servizi nelle immediate vicinanze. A soli 2 minuti a piedi si trova il supermercato Gieffe, mentre la fermata dell'autobus di Viale Bonaria è raggiungibile in 5 minuti. La fermata del tram Lussu dista appena 6 minuti a piedi, garantendo ottimi collegamenti con il resto della città.

Questo immobile rappresenta un'opportunità unica per professionisti, studi associati o aziende che cercano uno spazio di rappresentanza in una zona centrale e ben servita di Cagliari. La disponibilità immediata lo rende perfetto per chi desidera avviare o trasferire la propria attività senza attese.

Contattare il numero
Classe energetica D

Caratteristiche

Classe energetica: Classe Energetica D

Contatti

Inserzionista Gianmarco Cincottta
Annuncio del 11 novembre 2025

No contatti pubblicitari, grazie.

Invia un messaggio all'inserzionista

Casa Da Privato
La tua pubblicità qui, contattaci subito!

© 2005-2026 LaboWeb S.n.c. - P. Iva 10185480968
L'utilizzo del sito è subordinato all'accettazione delle Condizioni Generali, Informativa Privacy e Cookie Privacy - Impostazioni Privacy