ClickCase.it

appartamento in residence con parco tennis e piscina

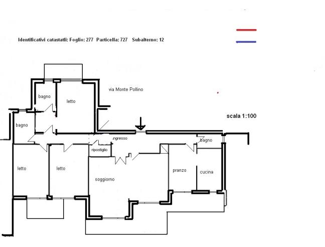
Appartamento in Vendita da Privato - Zona Monte Sacro, Roma

170 m² | più di 5 locali | 3 bagni | Trattativa Riservata | Segnala abuso

Descrizione

Vendita da privato. appartamento di grande metratura in buono stato suddiviso e suddivisibile in due appartamenti sito al secondo piano di una palazzina costruita nel 1970. L'immobile è in un comprensorio verde circondato da servizi pubblici di ogni genere, negozi, ufficio postale centrale, banche, presidio asl, scuole, ben servito dai mezzi di trasporto pubblico. E' attualmente suddiviso in due zone una con bagno, cucina abitabile, e due camere da letto e terrazzo vivibile, l'altra due camere da letto due bagni angolo cottura e due balconi. Il riscaldamento è centralizzato contabilizzato così come l'acqua calda. E' presente impianto di condizionamento, antifurto e grate alle finestre. Affaccio est-ovest. La struttura è in cemento armato e pilastri, facilmente si presta a qualsiasi ridistribuzione degli spazi interni.
Classe energetica G

Caratteristiche

Stato: Abitabile
Anno costruzione: 1969
Piano: 2
Totale piani: 4
Cucina: Abitabile
Bagni: 3
Camere da letto: 4
Riscaldamento: Centralizzato
Climatizzazione: Si
Ascensore: Si
Balcone/Terrazzo: Terrazzo
Box/Posto Auto: Doppio
Cantina: Si
Classe energetica: Classe Energetica G

Contatti

Inserzionista maria
Aggiornato il 15 ottobre 2025

No contatti pubblicitari, grazie.

Invia un messaggio all'inserzionista

Casa Da Privato
La tua pubblicitĂ  qui, contattaci subito!

© 2005-2025 LaboWeb S.n.c. - P. Iva 10185480968
L'utilizzo del sito è subordinato all'accettazione delle Condizioni Generali, Informativa Privacy e Cookie Privacy - Impostazioni Privacy