Appartamento in porzione di casale

Roma, Trigoria - Vendita da Privato

  • Appartamento in Vendita da Privato - Via Mario Vinciguerra 535, Roma

    150 m² | più di 5 locali | 2 bagni | € 370.000

    No provvigioni. Appartamento via Mario Vinciguerra, Roma
    PORZIONE DI CASALE IN VENDITA ZONA TRIGORIA 360,000 euro
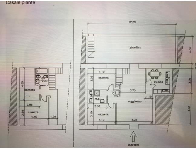
    Trigoria, adiacente i campi sportivi dell' ''A.S. Roma", più precisamente in Via Mario Vinciguerra, proponiamo in vendita una porzione di casale di 150 mq disposto su due livelli, piano terra e piano soppalcato.
    P.T.: ingresso, ampio soggiorno con camino ed accesso al giardino, cucina abitabile, due camere da letto, bagno con doccia e scala di accesso al piano superiore;
    Piano soppalcato: studio con travi a vista in legno, una camera da letto matrimoniale e una cameretta con lucernari, bagno con vasca.
    Completa la proprietà un giardino attrezzato di 50 mq circa un garage doppio di pertinenza e un posto auto.
    No agenzie


Caratteristiche
Stato: Ristrutturato
Piano: Ultimo
Cucina: Abitabile
Bagni: 2
Giardino: Privato
Camere da letto: 4
Riscaldamento: Autonomo
Climatizzazione: Si
Arredamento: Semi-arredato
Box/Posto Auto: Doppio

Video

Contatti

No contatti pubblicitari, grazie.

Invia un messaggio all'inserzionista

Inserzionista Silvia
Aggiornato il 10 gennaio 2026

Segnala abuso