ClickCase.it

Appartamento Duplex

Appartamento in Vendita da Privato - Via Francesco Patella 16, Mosciano Sant'Angelo

112 m² | 5 locali | € 156.000 | Segnala abuso

Descrizione

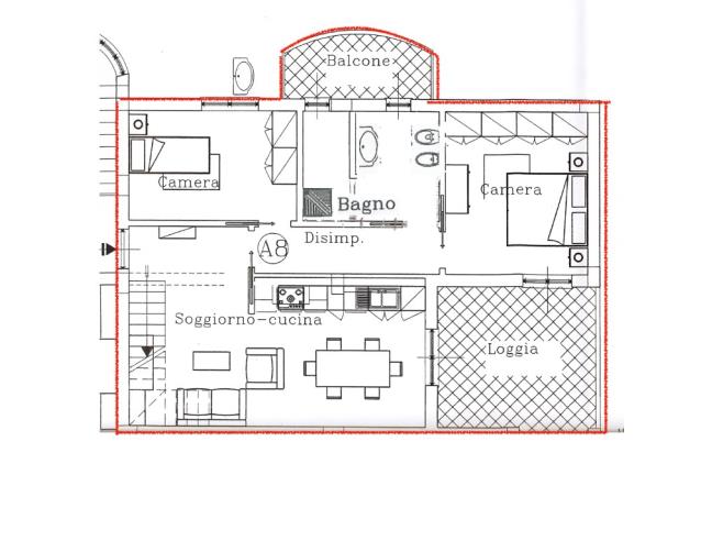
Vendita da privato. In un fabbricato di recente costruzione a pochi passi dal centro(postemt.100,banca mt.200,farmacia mt.100,scuole elementari ed asilo nido mt.100,supermercato mt.50) vendesi Duplex (mq.112)collegato con scala interna composto da : Ingresso ,soggiorno con angolo cottura,corridoio,due camere da letto,bagno e antibagno ,balcone e loggia con vista verso est al primo piano.Al secondo piano Corridoio,taverna cucina,bagno,camera da letto e due loggie.L'appartamento è provvisto di riscaldamento a pavimento,e aria condizionata in due camere da letto,inoltre ci sono due lavatoi esterni uno al primo piano e uno al secondo. box auto e cantina di oltre 40mq , balconi e loggie mq40
Classe energetica D

Caratteristiche

Classe energetica: Classe Energetica D

Contatti

Inserzionista michele
Aggiornato il 12 luglio 2025

No contatti pubblicitari, grazie.

Invia un messaggio all'inserzionista

Casa Da Privato
La tua pubblicitĂ  qui, contattaci subito!

© 2005-2025 LaboWeb S.n.c. - P. Iva 10185480968
L'utilizzo del sito è subordinato all'accettazione delle Condizioni Generali, Informativa Privacy e Cookie Privacy - Impostazioni Privacy