ClickCase.it

Appartamento con parquet e posto auto vicino staz. Tiburtina

Appartamento in Vendita da Privato - Via di Portonaccio snc, Roma

71 m² | 3 locali | 1 bagno | € 265.000 | Segnala abuso

Descrizione

No provvigioni. In Via Di Portonaccio, a 700mt dalla stazione Tiburtina; a 300 mt dalla Tangenziale Est; a pochi km dal GRA; vicino alle fermate autobus 545 e 409 che collegano le metropolitane più comode; nelle immediate vicinanze dei principali servizi scolastici, commerciali, postali e di socialità raggiungibili tutti a piedi, si propone la vendita di un appartamento di 71 mq posto al terzo piano di una palazzina dotata di ascensore.
L’abitazione è in ottime condizioni d’uso, gode di esposizione a sud, è provvista di climatizzatori, di infissi con doppi vetri e lo scaldacqua a gas.
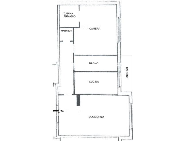
Varcando la porta blindata di questo alloggio dotato di parquet, sarete accolti da un ampio e confortevole soggiorno. Da un funzionale corridoio, che in fondo conduce a un pratico ripostiglio, si accede alla cucina dotata di un balcone con affaccio libero, a un bagno spazioso con ampia doccia e alla camera da letto matrimoniale. Quest’ultima è arricchita da una cabina armadio pratica e da un utile soppalco contenitore.
Il costo condominiale è di 40 Euro mensili al quale si aggiungono le quote del riscaldamento centralizzato di circa 65 Euro mensili durante i 5 mesi invernali, contabilizzati attraverso termovalvole di cui sono provvisti i termosifoni.
Completa questo immobile un preziosissimo parcheggio privato a riempimento, protetto da sbarre.
Se interessati, l’Università La Sapienza è a 2,5 km.

Caratteristiche

Stato: Abitabile
Anno costruzione: 1965
Piano: 3
Totale piani: 7
Cucina: Abitabile
Bagni: 1
Giardino: Nessuno
Camere da letto: 1
Riscaldamento: Centralizzato
Climatizzazione: Si
Arredamento: Semi-arredato
Ascensore: Si
Balcone/Terrazzo: Balcone
Box/Posto Auto: Posto auto scoperto
Cantina: No

Contatti

Inserzionista Tito
Annuncio del 20 ottobre 2025

No contatti pubblicitari, grazie.

Invia un messaggio all'inserzionista

Casa Da Privato
La tua pubblicità qui, contattaci subito!

© 2005-2025 LaboWeb S.n.c. - P. Iva 10185480968
L'utilizzo del sito è subordinato all'accettazione delle Condizioni Generali, Informativa Privacy e Cookie Privacy - Impostazioni Privacy