95 m² | 5 locali | 1 bagno | € 115.000 | Segnala abuso
 
	                        Descrizione
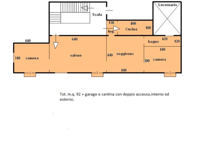
Vendita da privato. Vendesi appartamento situato in Sulmona al primo piano di un elegante edificio con comoda scala di accesso. Composto da due camere da letto, un salone con camino, una sala, cucina e bagno. Riscaldamento autonomo. Dotato di tre balconi e cantina.
Classe energetica F
Caratteristiche

Contatti
Inserzionista Alberto
Aggiornato il 01 ottobre 2025
No contatti pubblicitari, grazie.
 
	                         
	                         
	                         
	                         
	                         
	                        