ClickCase.it

Appartamento

Appartamento in Vendita da Privato - Zona Camerlata, Como

75 m² | 3 locali | 1 bagno | € 99.000 | Segnala abuso

Descrizione

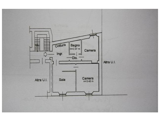
Vendita da privato. Como Camerlata vendesi trilocale ristrutturato, 75mq cl. energetica"F" IPE 157,95. Ingresso con angolo cottura, salotto/pranzo con camino, camera matrimoniale, cameretta, corridoio, servizio con vasca/doccia, termoautonomo, I piano, solaio 20 mq, posto auto condominiale, cl. energetica F157,95 kw. Spese condominiali minime. Zona sevita da tutti mezzi. Prezzo 99 000 euro Tel.
Classe energetica F 157,95 kWh/m²a

Video

Caratteristiche

Stato: Ristrutturato
Piano: 1
Totale piani: 4
Cucina: Angolo cottura
Bagni: 1
Giardino: Comune
Camere da letto: 2
Riscaldamento: Autonomo
Climatizzazione: No
Arredamento: Arredato
Ascensore: No
Balcone/Terrazzo: No
Box/Posto Auto: Posto auto scoperto
Cantina: No
Classe energetica: Classe Energetica F
IPE: 157,95 kWh/m²a

Contatti

Inserzionista Mina
Aggiornato il 02 agosto 2025

No contatti pubblicitari, grazie.

Invia un messaggio all'inserzionista

Casa Da Privato
La tua pubblicitĂ  qui, contattaci subito!

© 2005-2025 LaboWeb S.n.c. - P. Iva 10185480968
L'utilizzo del sito è subordinato all'accettazione delle Condizioni Generali, Informativa Privacy e Cookie Privacy - Impostazioni Privacy