ClickCase.it

appartamento bilocale

Appartamento in Vendita da Privato - Albenga

56 m² | 3 locali | 1 bagno | € 215.000 | Segnala abuso

Descrizione

Vendita da privato. vendita diretta senza intermediazioni
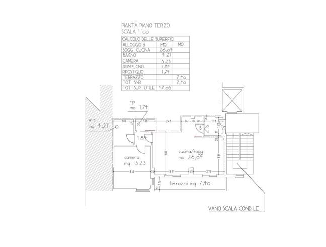
A pochi passi dal centro storico e a 10 minuti dalla spiaggia attrezzata, vendesi in Albenga zona vadino, sito al terzo piano in uno stabile signorile con ascensore, appartamenti in fase di realizzazione ricavati da un frazionamento di una unità immobiliare esistente. Gli appartamenti, come da planimetrie allegate si componge di:
- soggiorno con angolo cottura
- bagno
- disimpegno e ripostiglio
- camera matrimoniale
- un terrazzo ciascuno con esposizione verso un'ampia area aperta (piazzale) con vista collina ed esposizione verso il fiume e resti archeologici di epoca romana e vista centro storico
Per altre informazioni o appuntamenti contattatemi
Classe energetica D

Caratteristiche

Stato: Nuovo/In costruzione
Anno costruzione: 1975
Piano: 3
Totale piani: 5
Cucina: Angolo cottura
Bagni: 1
Giardino: Nessuno
Camere da letto: 1
Riscaldamento: Autonomo
Climatizzazione: Si
Arredamento: Vuoto
Ascensore: Si
Balcone/Terrazzo: Terrazzo
Box/Posto Auto: No
Cantina: No
Classe energetica: Classe Energetica D

Contatti

Inserzionista mario
Aggiornato il 10 agosto 2025

Invia un messaggio all'inserzionista

Casa Da Privato
La tua pubblicitĂ  qui, contattaci subito!

© 2005-2025 LaboWeb S.n.c. - P. Iva 10185480968
L'utilizzo del sito è subordinato all'accettazione delle Condizioni Generali, Informativa Privacy e Cookie Privacy - Impostazioni Privacy