ClickCase.it

Appartamento arredato con giardino

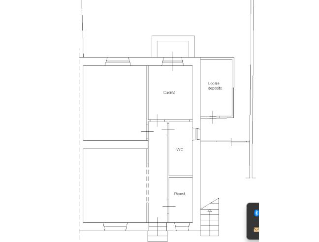
Appartamento in Vendita da Privato - Via Olmello 32, Minturno

75 m² | 2 locali | 1 bagno | € 160.000 | Segnala abuso

Descrizione

No agenzia. Scauri - via Olmello -. In un contesto tranquillo e a due passi dalla stazione, vendo grazioso appartamento con giardino completamente arredato e dotato dei principali suppellettili. L'appartamento ha un ingresso indipendente ed è costituito da: un ampio soggiorno, un'ampia camera da letto matrimoniale, una cucina abitabile, un bagno ed una piccola stanzetta adibita a lavanderia (80 mq. complessivi). La casa è dotata di uno spazio esterno pavimentato di 80 mq. circa. Lo spazio esterno ha un piccolo deposito di 5 mq. l'appartamento è libero
Classe energetica G 212,00 kWh/m²a

Caratteristiche

Stato: Abitabile
Piano: Piano terra
Totale piani: 2
Cucina: Abitabile
Bagni: 1
Giardino: Privato
Camere da letto: 1
Riscaldamento: Autonomo
Climatizzazione: Si
Arredamento: Arredato
Ascensore: No
Balcone/Terrazzo: No
Box/Posto Auto: No
Cantina: Si
Classe energetica: Classe Energetica G
IPE: 212,00 kWh/m²a

Contatti

Inserzionista Gaetano
Aggiornato il 21 maggio 2025

No contatti pubblicitari, grazie.

Invia un messaggio all'inserzionista

Casa Da Privato
La tua pubblicitĂ  qui, contattaci subito!

© 2005-2025 LaboWeb S.n.c. - P. Iva 10185480968
L'utilizzo del sito è subordinato all'accettazione delle Condizioni Generali, Informativa Privacy e Cookie Privacy - Impostazioni Privacy