ClickCase.it

Appartamento ampio e molto luminoso

Appartamento in Vendita da Privato - Piacenza

168 m² | più di 5 locali | 2 bagni | € 355.000 | Segnala abuso

Descrizione

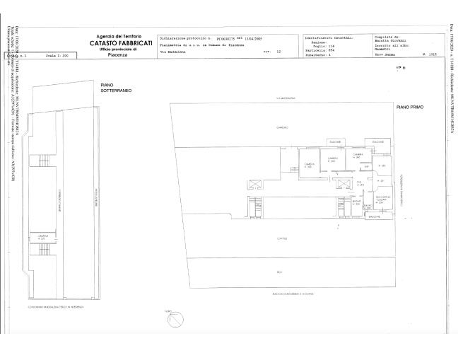
No provvigioni. Tre camere gradi spazi anche nella parte soggiorno cucina ingresso altezze di 3 metri due bagni tre balconi di cui uno abitabile
Tutto il pavimento in parquet porte Bertolotto in legno armadi a scomparsa a muro
Possibilità di due ingressi e suddivisione in due appartamenti cantina e garage
Riscaldamento autonomo classe D con caldaia a condensazione e valvole regolabili wireless con programmazione delle temperature e degli spazi
Climatizzazione canalizzata . Zona centrale a pochissimo da piazza Cavalli zona alta della vita e quindi senza umidità
Tutto in ottime condizioni
Classe energetica D 170,71 kWh/m²a

Caratteristiche

Stato: Ristrutturato
Piano: Piano rialzato
Totale piani: 1
Cucina: Abitabile
Bagni: 2
Giardino: Comune
Camere da letto: 3
Riscaldamento: Autonomo
Climatizzazione: Si
Arredamento: Semi-arredato
Ascensore: Si
Balcone/Terrazzo: Balcone
Box/Posto Auto: Singolo
Cantina: Si
Classe energetica: Classe Energetica D
IPE: 170,71 kWh/m²a

Contatti

Inserzionista Anna gardini
Aggiornato il 14 settembre 2025

No contatti pubblicitari, grazie.

Invia un messaggio all'inserzionista

Casa Da Privato
La tua pubblicitĂ  qui, contattaci subito!

© 2005-2025 LaboWeb S.n.c. - P. Iva 10185480968
L'utilizzo del sito è subordinato all'accettazione delle Condizioni Generali, Informativa Privacy e Cookie Privacy - Impostazioni Privacy