ClickCase.it

Appartamento ampia metratura

Appartamento in Vendita da Privato - Via Torraccia di Aguzzano 2, Roma

125 m² | 5 locali | 2 bagni | € 530.000 | Segnala abuso

Descrizione

No intermediari. ANIENE-COLLATINO-KANT (PARCO PETROSELLI). A soli 15 minuti a piedi, passando all'interno del Parco Petroselli si arriva sulla via Nomentana, zona Talenti-Monte Sacro.

Appartamento ubicato in un contesto residenziale e tranquillo, grazie alla sua ubicazione in una strada chiusa e via di solo traffico locale.
L'immobile fa parte di un fabbricato di quattro piani fuori terra, di cui il piano terra è un piano piloty ed è adibito ai posti auto. Il fabbricato ha beneficiato dell'intervento del SUPER BONUS 110% per lavori di efficientamento energetico, pertanto ci permette di avere un edificio energeticamente efficiente, la sua classe energetica corrisponde a "A2".
Grazie all'intervento del Super Bonus 110%, l'immobile ha la coibentazione termica e fonoassorbente, ad alta efficienza termoacustica. Con l’intervento del Super Bonus 110% sono inclusi anche i lavori di ordinaria e straordinaria manutenzione. Pertanto, l’immobile è completo di impianto fotovoltaico da 5 moduli pari a 2,275 kWp di produzione, è presente la batteria di accumulo per un max di 6,5 kWh, colonnina di ricarica per veicoli, radiatori, crono termico, valvole termostatiche, infissi, avvolgibili, tende da sole, climatizzatori, sostituzione caldaia.
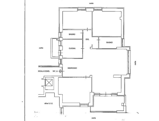
L’immobile nel suo complesso ha una metratura commerciale di mq. 145, mentre il suo calpestio è di 125 mq circa. Nel suo interno si compone di un ampio salone con accesso diretto sul terrazzo, cucina abitabile con accesso diretto al balcone, tre camere da letto e doppi servizi.
Posto Auto coperto con colonnina di ricarica per veicoli elettrici.
Classe energetica A2 65,00 kWh/m²a

Caratteristiche

Stato: Ristrutturato
Anno costruzione: 1980
Piano: 3
Totale piani: 3
Cucina: Abitabile
Bagni: 2
Giardino: Comune
Camere da letto: 3
Riscaldamento: Autonomo
Climatizzazione: Si
Arredamento: Vuoto
Ascensore: Si
Balcone/Terrazzo: Terrazzo
Box/Posto Auto: Posto auto coperto
Cantina: No
Classe energetica: Classe Energetica A2
IPE: 65,00 kWh/m²a

Contatti

Inserzionista Maria
Annuncio del 08 settembre 2025

No contatti pubblicitari, grazie.

Invia un messaggio all'inserzionista

Casa Da Privato
La tua pubblicità qui, contattaci subito!

© 2005-2026 LaboWeb S.n.c. - P. Iva 10185480968
L'utilizzo del sito è subordinato all'accettazione delle Condizioni Generali, Informativa Privacy e Cookie Privacy - Impostazioni Privacy