ClickCase.it

Appartamento allo stato rustico

Casa indipendente in Vendita da Privato - Crispiano

150 m² | più di 5 locali | € 96.000 | Segnala abuso

Descrizione

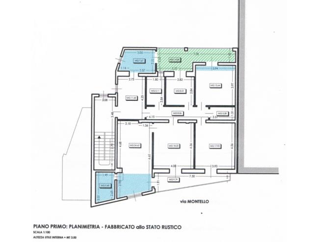
No intermediari. a Crispiano in via Montello quartiere San Francesco
vendo appartamento di mq 150 posto al 1° piano, allo stato rustico, con accesso indipendente così composto:
ingresso, tinello, soggiorno, cucina, bagno, disimpegno, n.3 camere da letto, ripostiglio, bagno di servizio, balcone e porticato retro.
Lastrico solare di esclusiva proprietà e con possibilità di costruire un piano attico.
Classe energetica non determinabile in quanto immobile rustico.
Immobile non soggetto all'obbligo di certificazione energetica

Caratteristiche

Classe energetica: Immobile non soggetto all'obbligo di certificazione energetica

Contatti

Inserzionista Michele Laddomada
Aggiornato il 09 ottobre 2025

Invia un messaggio all'inserzionista

Casa Da Privato
La tua pubblicità qui, contattaci subito!

© 2005-2025 LaboWeb S.n.c. - P. Iva 10185480968
L'utilizzo del sito è subordinato all'accettazione delle Condizioni Generali, Informativa Privacy e Cookie Privacy - Impostazioni Privacy