ClickCase.it

APPARTAMENTO AL PIANO PRIMO

Casa indipendente in Vendita da Privato - Via Fiorino 15, Loculi

65 m² | 3 locali | € 75.000 | Segnala abuso

Descrizione

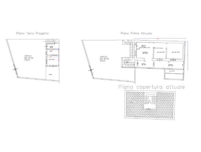
Vendita da privato. COMPOSTO DA PRANZO CUCINA, BAGNO, DUE CAMERE DA LETTO AMPIA VERANDA CON RIPOSTIGLIO , SOPRASTNATE TERRAZAZ BELVEDERE DI MQ 90.00
CORTILE INDIPENDENTE 90 MQ CON OLIVO SECOLARE, VANO SOTTOSCALA ABITABILE DI MQ 20.00. IN FASE FINALE DI RISTRUTTURAZIONE. POSSIBILITA DI CONTRIBUTO A FONDO PERDUTO € 15.000,00 DAL COMUNE TRASFERENDO LA RESIDENZA DA UN PAESE DI PIU DI 3000 ABITANTI. DOCUMENTI REGOLARI PWER ACQUISTO CON MUTUO BANCARIO
Immobile non soggetto all'obbligo di certificazione energetica

Caratteristiche

Classe energetica: Immobile non soggetto all'obbligo di certificazione energetica

Contatti

Inserzionista Paolo
Aggiornato il 24 ottobre 2025

No contatti pubblicitari, grazie.

Invia un messaggio all'inserzionista

Casa Da Privato
La tua pubblicità qui, contattaci subito!

© 2005-2025 LaboWeb S.n.c. - P. Iva 10185480968
L'utilizzo del sito è subordinato all'accettazione delle Condizioni Generali, Informativa Privacy e Cookie Privacy - Impostazioni Privacy