ClickCase.it

Appartamento al centro - Stazione - Calopinace

Appartamento in Vendita da Privato - Via Torricelli Ferrovieri 1, Reggio Calabria

88 m² | 4 locali | 1 bagno | € 90.000 | Segnala abuso

Descrizione

No intermediari. Vendo luminoso appartamento di c.a 90 mq sito al 4 piano, senza ascensore, di un palazzo a 4 piani fuori terra ristrutturato di recente per le 4 facciate estere ed i balconi.
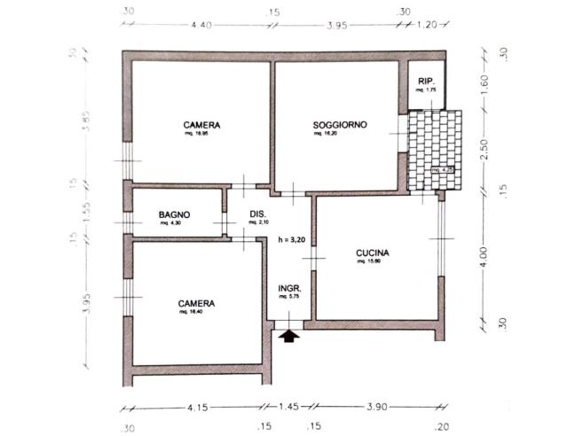
Composto da ingresso, corridoio, cucina abitabile e grande soggiorno con uscita in veranda coperta in cui è presente un ripostiglio chiuso a vetri, n. 2 camere da letto, bagno che necessita di ristrutturazione e cantina nel seminterrato di ca. 10 mq.
Tutte le camere (cantina compresa) sono dotate di finestra.
Il fabbricato è dotato di cortile condominiale recintato e chiuso, destinato a posti auto con n. 1 posto auto assegnato all'appartamento.
Si presta bene come abitazione o investimento per camere studenti, dalla quale è possibile raggiungere facilmente a piedi e in pochi minuti, il corso Garibaldi, la stazione centrale (autobus univerisità, ospedale, policlinico, ortopedico), la via marina il duomo e praticamente tutto il centro storico fino al museo, piazza De Nava e al porto per l'imbarco dei traghetti/aliscafi per Messina.
Spese condominiali ca. 48 €/mese.
Attualmente locato con contratto in scadenza a Giugno 2023, rendita oltre 4000 €/anno.
Prezzo leggermente trattabile.
Classe energetica G

Caratteristiche

Stato: Abitabile
Anno costruzione: 1970
Piano: 4
Totale piani: 4
Cucina: Abitabile
Bagni: 1
Giardino: Comune
Camere da letto: 2
Riscaldamento: Assente
Climatizzazione: Si
Ascensore: No
Balcone/Terrazzo: Balcone
Box/Posto Auto: Singolo
Cantina: Si
Classe energetica: Classe Energetica G

Contatti

Inserzionista Carmelo
Aggiornato il 03 dicembre 2025

No contatti pubblicitari, grazie.

Invia un messaggio all'inserzionista

La tua pubblicità qui, contattaci subito!

© 2005-2026 LaboWeb S.n.c. - P. Iva 10185480968
L'utilizzo del sito è subordinato all'accettazione delle Condizioni Generali, Informativa Privacy e Cookie Privacy - Impostazioni Privacy