ClickCase.it

APPARTAMENTO AL 3° PIANO COMPLETAMENTE RISTRUTTURATO

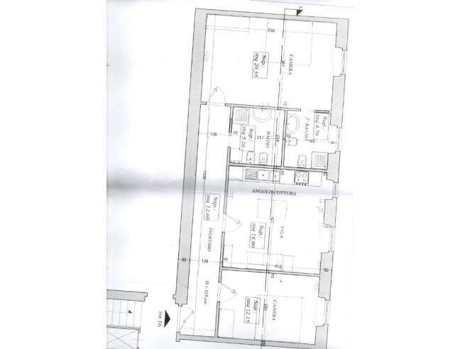
Appartamento in Affitto da Privato - Via Saturnia 49, Roma

100 m² | 3 locali | 2 bagni | € 1.500 mensili | Segnala abuso

Descrizione

Affitto da privato. APPARTAMENTO AL 3° PIANO COMPLETAMENTE RISTRUTTURATO IN EDIFICIO DI 4 PIANI DEL 1930 A 5 MIN DALLA METRO C (PORTA METRONIA) E 10 MIN DALLA METRO A (SAN GIOVANNI) OLTRE AI MEZZI DI TRASPORTO PUBBLICO SOTTO CASA
DOTATA DI OGNI COMFORT CON 1 CAMERA DA LETTO DOPPIA, 1 CAMERA DA LETTO SINGOLA, 2 BAGNI CON DOCCIA, AMPIO SOGGIORNO-CUCINA CON TUTTI GLI ELETTRODOMESTICI, ARIA CONDIZIONATA
PER LAVORATORI O STUDENTI REFERENZIATI.
Classe energetica C

Caratteristiche

Tipo locazione: Libero
Spese: € 100 mensili a parte
Stato: Ristrutturato
Anno costruzione: 1930
Piano: 3
Totale piani: 4
Cucina: Abitabile
Bagni: 2
Giardino: Comune
Camere da letto: 2
Riscaldamento: Autonomo
Climatizzazione: Si
Arredamento: Arredato
Ascensore: Si
Balcone/Terrazzo: No
Box/Posto Auto: No
Cantina: No
Classe energetica: Classe Energetica C

Contatti

Inserzionista tommaso
Annuncio del 11 febbraio 2026

No contatti pubblicitari, grazie.

Invia un messaggio all'inserzionista

La tua pubblicità qui, contattaci subito!

© 2005-2026 LaboWeb S.n.c. - P. Iva 10185480968
L'utilizzo del sito è subordinato all'accettazione delle Condizioni Generali, Informativa Privacy e Cookie Privacy - Impostazioni Privacy