ClickCase.it

ampio trilocale ristrutturatissimo balduina

Appartamento in Affitto da Privato - Via della Balduina 225, Roma

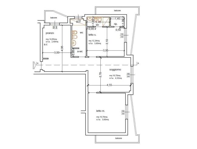
90 m² | 4 locali | 2 bagni | € 1.350 mensili | Segnala abuso

Descrizione

No agenzia. Via della balduina 225, in quartiere e condominio ben abitato a soli 500 metri da stazione Balduina, PRIVATO affitta solo con contratto pluriennale registrato delizioso quadrilocale di 90 mq ristrutturatissimo e completamente arredato, NUOVO MAI USATO. Luminoso secondo piano basso senza ascensore, con tre balconi e gradevoli affacci in palazzina defilata e tranquilla con impianto di videosorveglianza.
Zona pranzo con cucina corredata di frigo-freezer, piano a induzione, forno ventilato, lavastoviglie, cappa a scomparsa, soggiorno, bagno finestrato, ampia camera da letto matrimoniale, seconda camera anche matrimoniale con bagno in camera e piccola cabina armadio. Lavasciugatrice, tutti gli infissi nuovi, aria condizionata in tutti i locali. Riscaldamento centralizzato. Affittasi esclusivamente a persone referenziate, ben educate e pulite, canone 1350 euro al mese piu 150 euro di spese condominiali comprensive di riscaldamento, acqua potabile, IMU. Nessuna utenza gas da pagare. Utenza elettricita' e tassa rifiuti (tari) da intestare all'inquilino. Si richiede deposito cauzionale. Possibilità di usufruire di una piccola soffitta. Non trattabile. No brevi periodi. Nessun costo di agenzia. Assolutamente no animali. Grazie.
Fermata bus e supermercato sotto casa, dalla fermata Balduina linea FL3 si raggiunge agevolmente San Pietro, Trastevere, Ostiense, Tuscolana, Tiburtina, Gemelli, Monte Mario, San Filippo Neri.
Classe energetica E 112,00 kWh/m²a

Caratteristiche

Tipo locazione: 4+4
Spese: € 150 mensili incluse
Stato: Ristrutturato
Anno costruzione: 1960
Piano: 2
Totale piani: 5
Cucina: Abitabile
Bagni: 2
Camere da letto: 2
Riscaldamento: Centralizzato
Climatizzazione: Si
Arredamento: Arredato
Ascensore: No
Balcone/Terrazzo: Balcone
Classe energetica: Classe Energetica E
IPE: 112,00 kWh/m²a

Contatti

Inserzionista gc
Annuncio del 28 aprile 2026

No contatti pubblicitari, grazie.

Invia un messaggio all'inserzionista

La tua pubblicitĂ  qui, contattaci subito!

© 2005-2026 LaboWeb S.n.c. - P. Iva 10185480968
L'utilizzo del sito è subordinato all'accettazione delle Condizioni Generali, Informativa Privacy e Cookie Privacy - Impostazioni Privacy