ClickCase.it

Ampio e luminoso appartamento su due livelli

Appartamento in Vendita da Privato - Via Bonaini 19, Livorno

182 m² | più di 5 locali | 2 bagni | € 300.000 | Segnala abuso

Descrizione

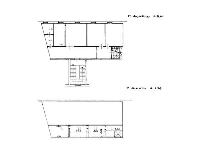
No intermediari. In posizione centrale, proponiamo in vendita un appartamento di grande fascino e luminosità, situato al quarto e ultimo piano di un elegante condominio. L’abitazione, di circa 180 metri quadrati, si sviluppa su due livelli e offre spazi ampi e ben distribuiti.

Al primo livello si trova un accogliente living open space, uno studio, una cucina abitabile, due camere matrimoniali, un antibagno con zona lavanderia, un ampio bagno principale e un bagno di servizio.

Il piano superiore, mansardato, ospita quattro ambienti versatili attualmente adibiti a studio, sala cinema, palestra e spazioso sottotetto, perfetti per chi desidera creare zone dedicate al lavoro, al relax o al tempo libero.

L’appartamento, caratterizzato da un’ottima esposizione e da una piacevole sensazione di ariosità, rappresenta una soluzione ideale per chi cerca comfort, spazio e centralità.
Classe energetica E 115,00 kWh/m²a

Caratteristiche

Stato: Ristrutturato
Anno costruzione: 1950
Piano: Su più livelli
Totale piani: 2
Cucina: Abitabile
Bagni: 2
Camere da letto: 2
Riscaldamento: Autonomo
Climatizzazione: Si
Arredamento: Arredato
Ascensore: Si
Classe energetica: Classe Energetica E
IPE: 115,00 kWh/m²a

Contatti

Inserzionista Marco Giambersi
Annuncio del 05 novembre 2025

No contatti pubblicitari, grazie.

Invia un messaggio all'inserzionista

Casa Da Privato
La tua pubblicità qui, contattaci subito!

© 2005-2025 LaboWeb S.n.c. - P. Iva 10185480968
L'utilizzo del sito è subordinato all'accettazione delle Condizioni Generali, Informativa Privacy e Cookie Privacy - Impostazioni Privacy