ClickCase.it

AMPIO BILOCALE Largo Luca Della Robbia, 5°PIANO ascensore

Appartamento in Vendita da Privato - Zona Pozzo Strada, Torino

60 m² | 2 locali | 1 bagno | € 129.000 | Segnala abuso

Descrizione

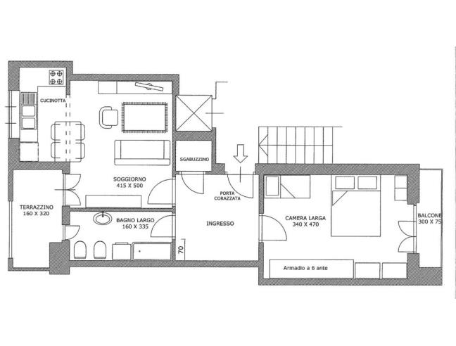
No provvigioni. AMPIO BILOCALE (60MQ) 5°PIANO con ascensore, POZZO STRADA fronte giardini Largo LUCA della ROBBIA, Metro MASSAUA. Professionista vende come PRIVATO.
2 arie, ingresso, soggiorno con cucina a vista e accesso al terrazzino, ampia camera da letto con secondo balcone, bagno, sgabuzzino e cantina. Parzialmente ristrutturato, portoncino blindato, TERMOVALVOLE per riscaldamento semi autonomo, SERRAMENTI NUOVI ad alta inerzia termica e aperture anche a vasistas.
Luminoso, panoramico, in STABILE anni 60 totalmente e recentemente ristrutturato (caldaia, tetto, facciate e balconi, impianti).L'ampia e luminosa zona giorno gode di due aperture: una porta balcone con accesso su terrazzino dove poter mangiar fuori, fresco d'estate e con vista Alpi di rara ampiezza, fronte area verde attrezzata; dalla finestra a tre battenti incornicia la cucinotta di tre lati con tavolo all'americana e piano di lavoro in solido granito.
Sotto casa: Giardino attrezzato a verde, Crai, notevole possibilità di parcheggio.
A due isolati: Metro MASSAUA, il mercato di C.so Brunelleschi e la pista ciclabile fino al Parco Ruffini, zona residenziale con negozi, cinema, anagrafe, ospedale, oltre alla prossimità dello svincolo tangenziale. Tel. o ore pasti.
Pronto da abitare, semiarredato per disponibilità lascito cucina e bagno.
Classe energetica B 144,00 kWh/m²a

Video

Caratteristiche

Stato: Ristrutturato
Anno costruzione: 1960
Piano: 5
Totale piani: 7
Cucina: Abitabile
Bagni: 1
Camere da letto: 1
Arredamento: Semi-arredato
Ascensore: Si
Balcone/Terrazzo: Balcone
Cantina: Si
Classe energetica: Classe Energetica B
IPE: 144,00 kWh/m²a

Contatti

Inserzionista cosimo
Aggiornato il 18 giugno 2025

Invia un messaggio all'inserzionista

Casa Da Privato
La tua pubblicità qui, contattaci subito!

© 2005-2025 LaboWeb S.n.c. - P. Iva 10185480968
L'utilizzo del sito è subordinato all'accettazione delle Condizioni Generali, Informativa Privacy e Cookie Privacy - Impostazioni Privacy