ClickCase.it

3 vani da ristrutturare vicino al parco Lambro, MM2 Udine

Appartamento in Vendita da Privato - Zona Udine, Milano

39 m² | 2 locali | € 180.000 | Segnala abuso

Descrizione

Vendita da privato. Privato vende appartamento di 39mq, libero subito, da ristrutturare, situato in via privata Ruggero Ruggeri, MM2 Udine.
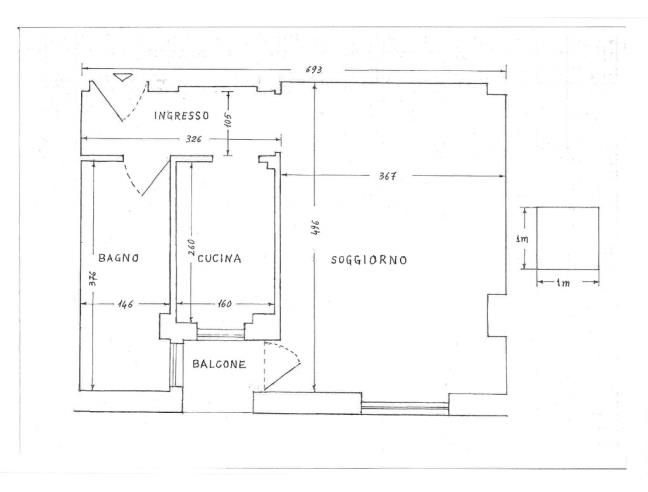
Attualmente l’appartamento è suddiviso in 3 vani, locale giorno/notte, cucinotto e bagno, uniti da un corridoio.
L’appartamento è posto al primo piano di tre di una piccola palazzina priva di ascensore molto tranquilla, il riscaldamento è centralizzato, la porta d’ingresso è blindata, la proprietà è completata da una cantina al piano -1.
L’appartamento dista 5 minuti a piedi dalla fermata MM2 Udine (linea 2 verde) ed è a 100m dal parco Lambro uno dei parchi più grandi e belli della città, nei dintorni edifici di prestigio e nuovi uffici.
La zona è molto verde e tranquilla, probabile un aumento del valore della zona.
Nella prima foto la vista dal balconcino.
Classe energetica G 185,00 kWh/m²a

Caratteristiche

Classe energetica: Classe Energetica G
IPE: 185,00 kWh/m²a

Contatti

Inserzionista Davide
Annuncio del 16 dicembre 2025

No contatti pubblicitari, grazie.

Invia un messaggio all'inserzionista

La tua pubblicità qui, contattaci subito!

© 2005-2026 LaboWeb S.n.c. - P. Iva 10185480968
L'utilizzo del sito è subordinato all'accettazione delle Condizioni Generali, Informativa Privacy e Cookie Privacy - Impostazioni Privacy